Executive Hangar - Ready for Occupancy

Position your aviation business for success in Northwest Oklahoma with this exceptional opportunity: a newly constructed 17,000 sq. ft. corporate hangar at West Woodward Airport (WWR), designed with operational efficiency and expansion in mind.

Executive Hangar

Hangar Features

  • 17,000 Sq. Ft. Hangar Box
  • LED Lighting 
  • Radiant Heat  
  • Water-Only Fire Suppression System
  • Motorized Sliding Doors
  • Overhead Vehicle Door for Large Deliveries
  • Dedicated Restroom with Shower
  • Designed for the ERJ 145
  • Additional Capacity for General Aviation Aircraft
  • Airside Access
  • Gated Landslide Access  
  • ADA Compliant Parking

Located adjacent to the new general aviation terminal for maximum convenience and visibility, this hangar also features a brand-new taxilane and apron with direct access to the airport’s main runway and parallel taxiway system for seamless operations.

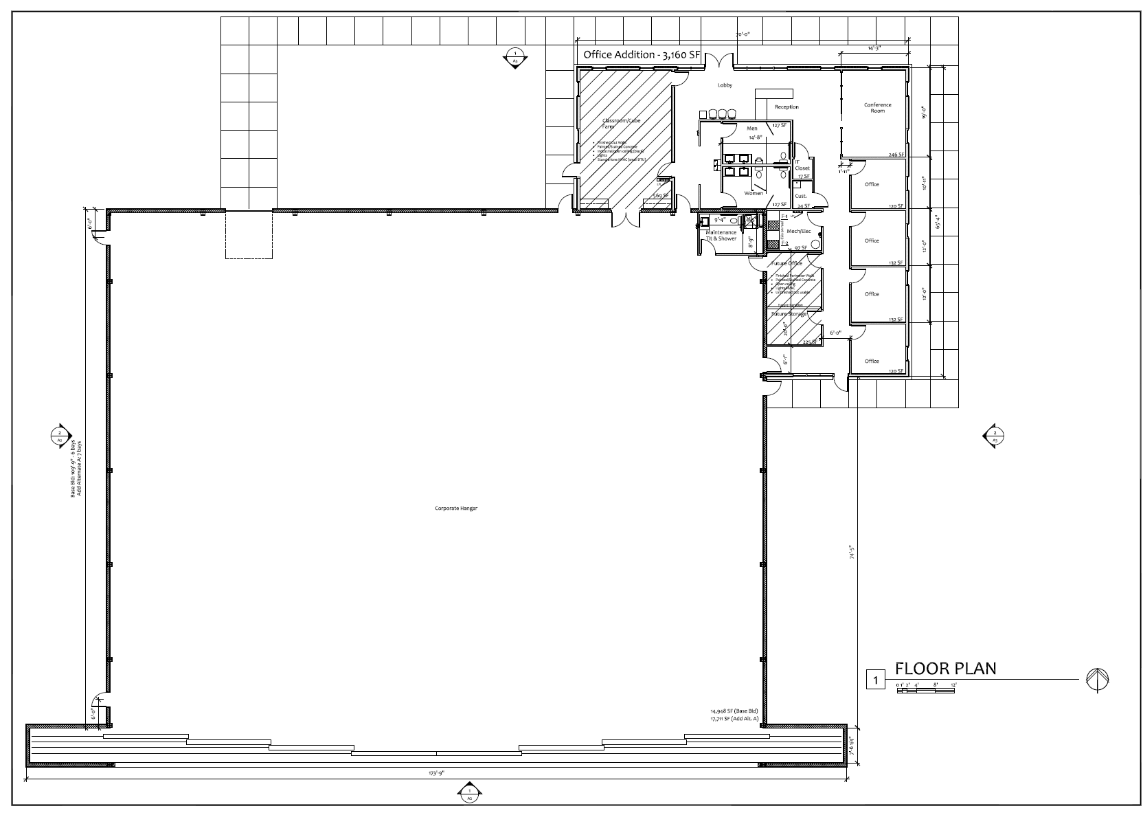
Executive Hangar Floor Plan
Executive Hangar Lobby

Office & Support Space

3,100+ sq. ft. of adjoining office space, including:

  • Public lobby with reception area
  • ADA Accessible Restrooms
  • Large conference room
  • Multiple private offices
  • Versatile multipurpose room suitable for training sessions, expanded office or cubicle space, parts storage, or mechanical support — featuring convenient double-door access to the hangar
Executive Hangar Location

Strategic Location & Infrastructure

  • Runway extension underway — reaching 6,000 feet by 2026 to accommodate larger aircraft
  • Situated on the south side of Woodward Airport, offering privacy and direct business access
  • Full-service FBO with Jet-A and AVGAS available
  • Adjacent green space available for future development
Executive Hangar Conference Room Offices
WW_AIRPORT_RIBBON_CUTTING-7
WWR
Inside Executive Hangar

Why Woodward?

Woodward, Oklahoma is a thriving regional hub with a pro-business climate and a strong foundation in energy, agriculture, and manufacturing.

Highlights include:

  • Low cost of living and affordable real estate
  • Median household income of $59,321 and growing
  • Skilled workforce supported by local training programs and a strong public school system
  • Business-friendly leadership and active economic development support through the Woodward Industrial Foundation
  • Quality of life with a suburban feel, family-friendly amenities, and a welcoming community
WW_AIRPORT_RIBBON_CUTTING-8

Whether you're expanding operations, relocating, or launching a new aviation venture, this hangar offers the infrastructure, flexibility, and location to help your business soar.